Clarifier Lamella
Perhatian!
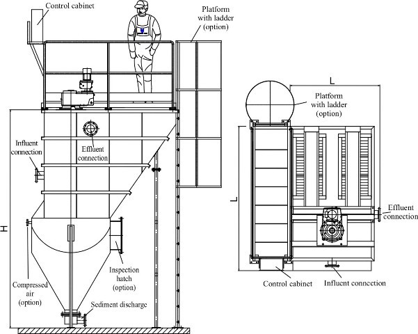
Spesifikasi Clarifier Lamella
Air dialirkan melalui bagian bawah incline plate, perlahan air mengalir ke atas, kemudian gumpalan flok akan jatuh menempel pada bagian bawah tiap plat sedangkan air yang terolah mengalir keatas dan meluber menuju saluran weir yang akan mengalir menuju outlet tangki sedimentasi.
Gumpalan dari kumpulan flok – flok yang menempel pada plat akan semakin banyak dan berat sehingga dapat meluncur kebawah pada permukaan plat yang miring. Selanjutnya kompulan flok mengendap secara gravitasi menuju dasar tangki sedimentasi.
Lumpur flok yang telah terbentuk secara periodik dibuang dengan membuka katup penguras (sludge drain) pada bagian bawah tangki sedimentasi. Direkomendasikan dilakukan pengeluaran lumpur secara kontinu yang tergantung pada pada beban suspended solid, untuk meningkatkan keefektifan volume zona pengendapan. Selama periode air baku dengan kekeruhan rendah, sebagian lumpur yang terbentuk dikembalikan pada tangki flokulasi-koagulasi untuk meningkatkan efisiensi sistem.
Aquarion Technologies
PT Aquarion Technologies adalah perusahaan supplier dan installer yang bergerak dalam bidang Pengolahan Air Bersih (Water Treatment) dan Air Limbah (Wastewater Treatment), yang didukung oleh tenaga–tenaga ahli yang berpengalaman lebih dari 5 tahun di bidangnya. Kami telah mengerjakan proyek–proyek pengolahan air bersih dan air limbah di berbagai perusahaan, skala kecil, menengah, hingga besar hampir di seluruh wilayah nusantara.
PT Aquarion Technologies memiliki kemampuan untuk merancang dan membangun instalasi pengolahan air sesuai kebutuhan konsumen dan mampu mengkombinasikan berbagai teknologi yang ada untuk memberikan solusi terbaik yang sesuai (customized) bagi setiap konsumen. Perusahaan kami juga merupakan salah satu formulator dan distributor peralatan water treatment di Indonesia, baik dari manufaktur lokal maupun dari manufaktur asing. Produk-produk kami semakin dikenal sangat luas karena mutunya dalam memuaskan kebutuhan pelanggan, dan kami terbiasa memecahkan persoalan yang paling sulit sekalipun dengan keyakinan kami dapat memberi solusi terbaik disaat produk lain tidak dapat melakukannya.
PT Aquarion Technologies melangkahkan bisnis dan menjalankan landasan yang sangat kokoh dalam VISI dan MISI dengan penerapan praktek dilapangan sesuai SOP Penetapan 5(lima) Budaya Kerja yang dijadikan landasan kami, yaitu :
- Trust
- Membangun kepercayaan pelanggan dalam setiap pekerjaan dengan keterampilan.
- Customer Focus
- Menjadikan pelanggan sebagai pondasi yang saling menguntungkan dari setiap keluhannya
- Menjalin relasi yang harmonis dengan pelanggan.
- Professionalisme
- Orientasi pekerjaan secara Cepat, Tepat dan Teratasi berdasarkan kemampuan terbaik dengan penuh tanggung jawab
- Integrity
- Berfikir sebelum melakukan tindakan
- Menjaga martabat pelanggan serta menjunjung tinggi etika pekerjaan
- Excellence
- Mampu mengembangkan serta perbaikan disetiap pelayanan dan pembaruan teknologi untuk pencapaian prima
Visi dan Misi
- Visi : Menjadi perusahaan global yang berwawasan lingkungan dalam usaha pengelolaan air dan limbah industri.
- Misi : Berupaya memberikan kontribusi kepada stake holder (Masyarakat, Pemerintah, Customer, Vendor, Employee) dalam pelestarian lingkungan hidup untuk kesejahteraan sosial.
Produk Lainnya
Produk Sponsor
ANGOLA Rak Putar Multifungsi / Rak B
Rp. 33.000
ANGOLA Rak Putar Serbaguna 360 Deraj
Rp. 33.000
ANGOLA Kotak Tisu Dinding/Tempat Tis
Rp. 19.000
ANGOLA Kotak Tisu Mini Pouch Coquett
Rp. 18.000
ANGOLA Kotak Tisu Bambu Minimalis D4
Rp. 15.000
